Zum Inhalt springen
Exklusive Neubauvilla mit 3 Schlafzimmern, nur 800 m vom Meer in Jávea zum Verkauf

Beschreibung

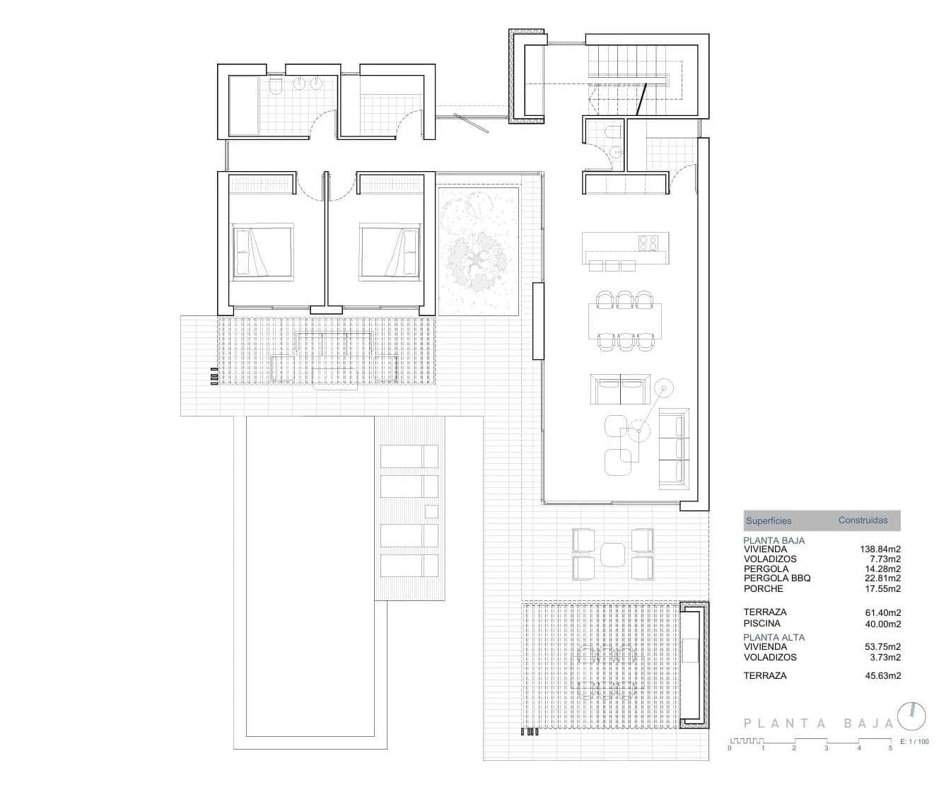
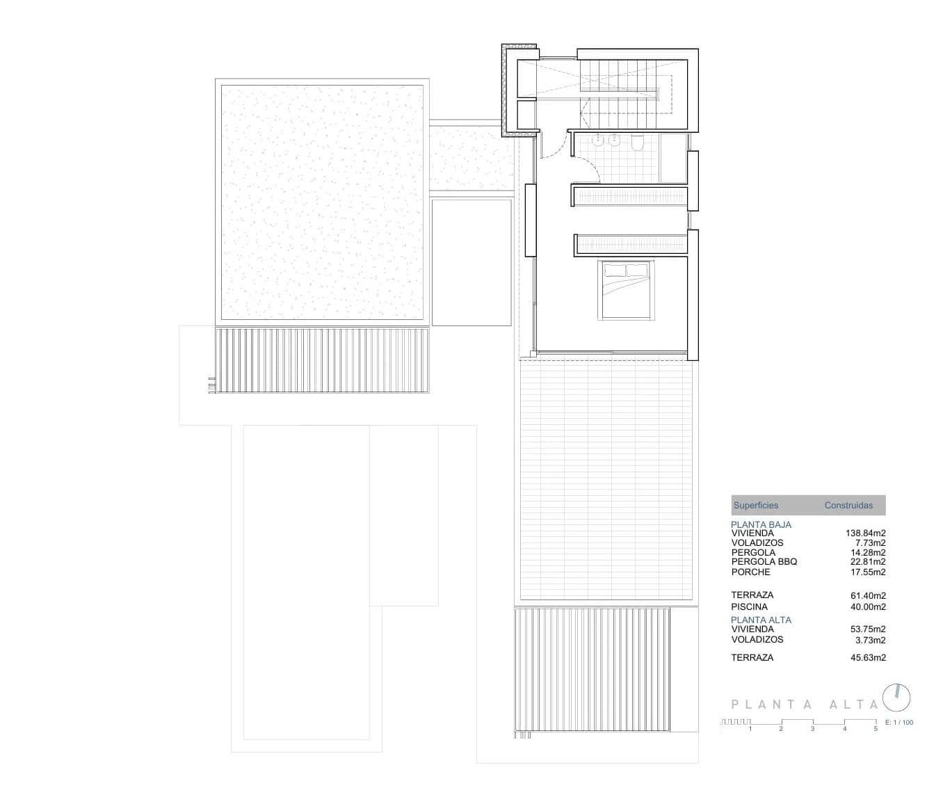
Exklusive Neubauvilla mit 3 Schlafzimmern, nur 800 m vom Meer in Jávea zum Verkauf. Exklusives mediterranes Wohnen in Javea Entdecken Sie diese atemberaubende, moderne Villa in einer der begehrtesten und ruhigsten Gegenden von Javea, nur 800 Meter vom Meer entfernt. Eingebettet zwischen Pinien und in der Nähe der berühmten Cala de la Barraca und Cala del Portixol bietet diese Residenz einen privilegierten Lebensstil inmitten der Natur und der Schönheit der Küste. Javea liegt an der Costa Blanca zwischen Alicante und Valencia und ist bekannt für sein kristallklares Wasser, seine charmante Altstadt und sein ganzjährig mildes Klima, was es zu einem der begehrtesten Reiseziele im Mittelmeerraum macht. Elegantes Design und helle, offene Räume Diese Villa wurde für Komfort und Stil entworfen und zeichnet sich durch eine moderne Architektur mit weichen Linien, großen Fenstern und einer fließenden Integration von Innen- und Außenbereich aus. Natürliches Licht durchflutet jeden Winkel und schafft eine warme und einladende Atmosphäre, die sowohl zum Wohnen als auch zur Unterhaltung ideal ist. Die Villa erstreckt sich über zwei Etagen und umfasst Offener Wohn- und Essbereich mit nahtlosem Zugang zu Terrassen und Pool Voll ausgestattete offene Küche 3 Schlafzimmer und 2 Badezimmer sowie 1 Gästetoilette Waschküche und Vorratsraum Privater Garten, Terrassen und Poolbereich mit Sommerküche Private Master-Suite und Outdoor-Lifestyle Das Erdgeschoss umfasst zwei Schlafzimmer, ein Badezimmer und großzügige Gemeinschaftsbereiche. Im Obergeschoss bietet das Hauptschlafzimmer einen privaten Rückzugsort mit eigenem Bad, einem großzügigen begehbaren Kleiderschrank und einer 45 m2 großen Terrasse, die sich perfekt eignet, um den Sonnenaufgang und die mediterrane Brise zu genießen. Der Außenbereich wurde zum Entspannen konzipiert und verfügt über einen privaten Pool, Sonnenterrassen und eine üppige Umgebung, die Ruhe und Privatsphäre garantieren. Erstklassige Lage an der Costa Blanca Nord Javea bietet einen außergewöhnlichen Lebensstil mit schönen Stränden, Wanderwegen, Yachthäfen, Golfplätzen und Gourmet-Restaurants. Die Stadt liegt 92 km von Alicante und 105 km von Valencia entfernt. Wichtige Entfernungen Strand und Cala del Portixol: 0,8 km Hafen und Yachthafen von Javea: 8 km Golfclub Javea: 10 km Flughafen Alicante: 100 km Flughafen Valencia: 125 km Ihr mediterranes Zuhause wartet auf Sie Ob Sie einen dauerhaften Wohnsitz, einen luxuriösen Urlaubsort oder eine erstklassige Investition suchen, diese Villa bietet Privatsphäre, Komfort und eine außergewöhnliche Lage an der Küste. Kontaktieren Sie uns noch heute für weitere Informationen oder um eine Besichtigung dieses exklusiven modernen Hauses in Javea zu vereinbaren.

Unverbindlich anfragen

Interesse an diesem Objekt?

Stellen Sie Ihre Fragen direkt zum Objekt. Ich melde mich mit einer ehrlichen Einschätzung zurück.

WhatsApp schreiben